Property Description
Freehold Vacant Mix Use Property - Commercial Premises & 3 x Self Contained Flats
Description
Opa Auctions are offering this mixed-use freehold property comprising three flats and commercial premises to ground floor.
Two x 1-bedroom flats and One x 2 bedroom self-contained flat to the first floor and a commercial property to the ground floor with an office which includes a Workshop, Storage Area, Warehouse and a unit in the town of Accrington.
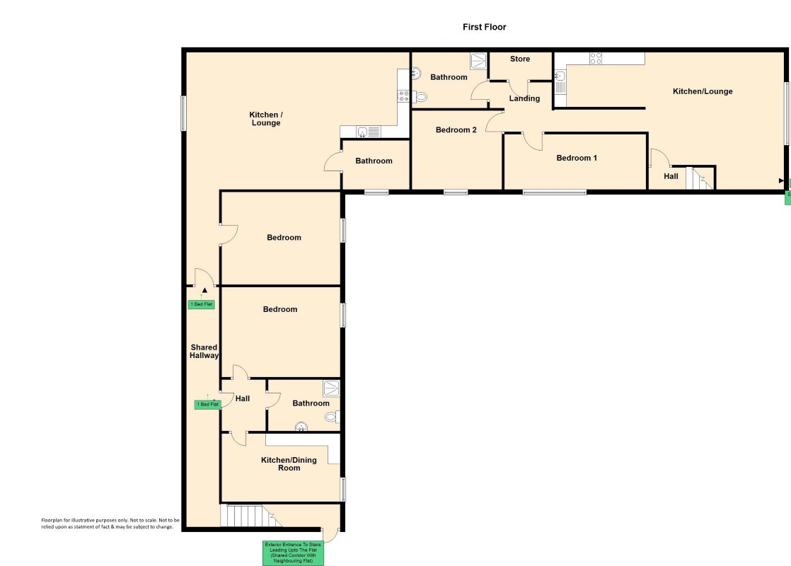
Accommodation
Flat 1 : 58m2
Two bedroom self-contained flat with an open plan kitchen lounge, bathroom.
Accessed via the front of the property.
Flat 2: 32 m2
One-bedroom self-contained flat with an open plan kitchen lounge, bathroom and well-proportioned bedroom and accessed via the side of the property.
Flat 3: 44 m2
One-bedroom self-contained flat with an open plan kitchen lounge, bathroom and well-proportioned bedroom and accessed via the side of the property.
Commercial premises
The premises may be suitable for a variety of uses and comprise of two offices, three storerooms, kitchenette and wc.
Circa 1000 SqFt / 92.9 SqM .
Tenure
Sold with vacant possession.
Location
The property is located on Clement St in the town of Accrington, Lancashire. The property is in walking distance of Accrington town with good on street parking. The premises are situated in a predominantly residential area, close to local amenities and less than 2 miles to junction 7 of the M65 motorway.
Council tax – Band A (Please refer to the government website)
EPC Rating – Please refer to the government website for more information.
Flat 1 – E 58m2
Flat 2 – D 32 m2
Flat 3 – E 44 m2
Utility Information
Pre-Auction Offers
Please complete the offer form which you will find in the legal documents and once complete please send this to auctions@theopa.co.uk
Please be advised that the videos and photographs provided have been supplied by the seller. We encourage you to conduct your own due diligence to obtain any further information that may be necessary.
DISCLAIMER
The OPA as agents for the seller of these Lots, give notification that any particulars contained within the catalogue/website are prepared to the best of their knowledge and include information that has been provided to them. Plans, photographs and room measurements (provided via a 3rd party) are provided as guidance only and should not be relied upon. Buyers should carry out their own due diligence/investigations, and if required seek independent legal/financial / professional advice. All potential buyers should make their own enquiries and investigations to the accuracy of the information contained in these particulars or to obtain further information that is not provided which they deem to be important prior to bidding. Any amendments to the particulars that The OPA are aware of will be published on the addendum, which is available within the lot information.
VIEWINGS
Buyers are deemed to have viewed the property (if access is available), viewed the virtual tours where applicable and undertaken all their due diligence checks prior to bidding. All viewings are undertaken at your own risk. It is recommended that you take a torch, as not all properties have lighting, and that appropriate clothing is worn. The OPA under no circumstances shall be liable and will not accept any responsibility for any indirect incidental, consequential, special, or exemplary damages, injury and/or death arising in connection with your access to any property, caused as a result of the property’s state of repair or your use/decision to use your own equipment or any furniture, equipment or appliances in the property.
GUIDE & RESERVE PRICE
All properties are sold subject to a reserve price, which represents the minimum amount the seller is willing to accept. The reserve price is confidential and is only disclosed between the seller and Auctioneer. The guide price is only an indication as to where the reserve is currently set and not necessarily the Auctioneers expectation of what it will sell for. If the guide price is a bracket figure, then the reserve price cannot be higher than the top end of the guide price, if the guide price is a fixed figure, then the reserve cannot be more than 10% above the guide price. The guide price and reserve price can be subject to change at any time up to and including the auction day and, properties can often sell for substantially more than the quoted guide price.
AUCTION COSTS
When purchasing a property at auction, you will be required to unconditionally exchange contracts at the conclusion of the auction. Therefore, it is essential to thoroughly review the legal pack for each property prior to placing a bid and seek legal advice if necessary. Each legal pack is unique and will outline the terms and conditions of the purchase, as well as any additional costs beyond the purchase price.
The sale of each lot is subject to a buyer’s fee of 2% of the Purchase Price subject to a Minimum Fee of £6,000 (whichever is greater). All fees inclusive of VAT. T&Cs apply, payable within the exclusivity period/at the end of the online auction. Along with the buyer's fee, the deposit shall be payable within the same period. For properties sold for £50,000.00 or more the deposit will be 10% of the purchase price. Properties sold for £50,000.00 or below will be a deposit of £8,000.00 minimum.
Any additional costs, beyond the Buyer’s fee, will be specified in the Special Conditions section of the legal pack, which must be paid upon completion. The legal pack has been prepared by the seller’s solicitor(s), who are solely responsible for its contents and for the disclosure of all known information. These documents will be made available upon request by the agents once the registration process is complete. It is the responsibility of the prospective buyer to carefully review and fully understand the legal pack, as they will be bound by all the terms and conditions therein. Please note that any stamp duty and/or government taxes are not included in the Special Conditions section of the legal pack, and all potential buyers are advised to conduct their own enquiries regarding such matters.
A
* Generally speaking Guide Prices are provided as an indication of each seller's minimum expectation, i.e. 'The Reserve'. They are not necessarily figures which a property will sell for and may change at any time prior to the auction. Virtually every property will be offered subject to a Reserve (a figure below which the Auctioneer cannot sell the property during the auction) which we expect will be set within the Guide Range or no more than 10% above a single figure Guide.
Submit an enquiry and someone will be in contact shortly.
By setting a proxy bid, the system will automatically bid on your behalf to maintain your position as the highest bidder, up to your proxy bid amount. If you are outbid, you will be notified via email so you can opt to increase your bid if you so choose.
If two of more users place identical bids, the bid that was placed first takes precedence, and this includes proxy bids.
Another bidder placed an automatic proxy bid greater or equal to the bid you have just placed. You will need to bid again to stand a chance of winning.